45fan.com - 路饭网

搜索: 您的位置主页 > 网络频道 > 阅读资讯:如何测量家居装修尺寸?

如何测量家居装修尺寸?

2015-11-10 13:18:47 来源:www.45fan.com 【

如何测量家居装修尺寸?

家居装修尺寸参考(图) (2008-10-10 17:35:50)
 
标签:装修家居 分类:健康人生
 
家居装修尺寸参考(图)
 
2008年10月10日11:44
 
点击查看原文
 
如何测量家居装修尺寸?
 
客厅
 
如何测量家居装修尺寸?
 
卧室
 
如何测量家居装修尺寸?
 
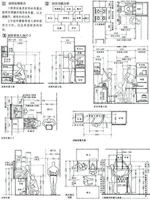
厨房
 
如何测量家居装修尺寸?
 
附:其它家装尺寸数据
 
在工地
 
1、标准红砖23*11*6;
 
2、标准入户门洞0.9米*2米,
 
3、房间门洞0.9米*2米,
 
4、厨房门洞0.8米*2米,
 
5、卫生间门洞0.7米*2米,
 
6、标准水泥50kg/袋。
 
在厨房
 
1.吊柜和操作台之间的距离应该是多少?60厘米。从操作台到吊柜的底部,您应该确保这个距离。这样,在您可以方便烹饪的同时,还可以在吊柜里放一些小型家用电器。
 
2.在厨房两面相对的墙边都摆放各种家具和电器的情况下,中间应该留多大的距离才不会影响在厨房里做家务?120厘米。为了能方便地打开两边家具的柜门,就一定要保证至少留出这样的距离。150厘米,这样的距离就可以保证在两边柜门都打开的情况下,中间再站一个人。
 
3.要想舒服地坐在早餐桌的周围,凳子的合适高度应该是多少?80厘米。对于一张高110厘米的早餐桌来说,这是摆在它周围凳子的理想高度。因为在桌面和凳子之间还需要30厘米的空间来容下双腿。
 
4.吊柜应该装在多高的地方?145至150厘米。这个高度可以使您不用垫起脚尖就能打开吊柜的门。
 
在餐厅
 
1.一个供六个人使用的餐桌有多大?120厘米。这是对圆形餐桌的直径要求。140*70厘米。这是对长方形和椭圆形桌子的尺寸要求。
 
2.餐桌离墙应该有多远?80厘米。这个距离是包括把椅子拉出来,以及能使就餐的人方便活动的最小距离。
 
3.一张以对角线对墙的正方形桌子所占的面积要有多大?180*180平方厘米这是一张边长90厘米,桌角离墙面最近距离为40厘米的正方形桌子所占的最小面积。
 
4.桌椅的标准高度应是多少?72厘米。这是桌子的中等高度,而椅子是通常高度为45厘米。
 
5.一张供六个人使用的桌子摆起居室里要占多少面积?300*300厘米。需要为直径120厘米的桌子留出空地,同时还要为在桌子四周就餐的人留出活动空间。这个方案适合于那种大客厅,面积至少达到600*350厘米。
 
6.吊灯和桌面之间最合适的距离应该是多少?70厘米。这是能使桌面得到完整的、均匀照射的理想距离。
 
在卫生间
 
1.卫生间里的用具要占多大地方?
 
马桶所占的一般面积:37厘米×60厘米
 
悬挂式或圆柱式盥洗池可能占用的面积:70厘米×60厘米
 
正方形淋浴间的面积:80厘米×80厘米
 
浴缸的标准面积:160厘米×70厘米
 
2.浴缸与对面的墙之间的距离要有多远?
 
100厘米。想要在周围活动的话这是个合理的距离。即使浴室很窄,也要在安装浴缸时留出走动的空间。总之浴缸和其他墙面或物品之间至少要有60厘米的距离。
 
3.安装一个盥洗池,并能方便地使用,需要的空间是多大?
 
90厘米×105厘米。这个尺寸适用于中等大小的盥洗池,并能容下另一个人在旁边洗漱。
 
4.两个洗手洁具之间应该预留多少距离?
 
20厘米。这个距离包括马桶和盥洗池之间,或者洁具和墙壁之间的距离。
 
5.相对摆放的澡盆和马桶之间应该保持多远距离?
 
60厘米。这是能从中间通过的最小距离,所以一个能相向摆放的澡盆和马桶的洗手间应该至少有180厘米宽。
 
6.要想在里侧墙边安装下一个浴缸的话,洗手间至少应该有多宽?
 
180厘米。这个距离对于传统浴缸来说是非常合适的。如果浴室比较窄的话,就要考虑安装小型的带座位的浴缸了。
 
7.镜子应该装多高?135厘米。这个高度可以使镜子正对着人的脸。
 
在卧室
 
1.双人主卧室的最标准面积是多少?12平方米
 
夫妻二人的卧室不能比这个在小了。在房间里除了床以外,还可以放一个双开门的衣柜(120*60厘米)和两个床头柜。在一个3*4.5米的房间里可以放更大一点的衣柜;或者选择小一点的双人床,再在抽屉和写字台之间选择其一。就可以在摆放衣柜的地方选择一个带更衣间的衣柜。
 
2.如果把床斜放在角落里,要留出多大空间?360*360厘米
 
这是适合于较大卧室的摆放方法,可以根据床头后面墙角空地的大小在拜访一个储物柜。
 
3.两张并排摆放的床之间的距离应该有多远?90厘米
 
两张床之间除了能放下两个床头柜以外,还应该能让两个人自由走动。当然床的外侧也不例外,这样才能方便的清洁地板和整理床上用品。
 
4.如果衣柜被放在了与床相对的墙边,那么两件家具这间的距离应该是多少?90厘米
 
这个距离是为了能方便地打开柜门而不至于被绊倒在床上
 
5.衣柜应该有多高?240厘米
 
这个尺寸考虑到了在衣柜里能放下长一些的衣物(160厘米),并在上部留出了放换季衣物的空间(80厘米)
 
6.要想容的下双人床、两个床头柜外加衣柜的侧面的话,一面墙应该有多大?420*420厘米
 
这个尺寸的墙面可以放下一张160厘米宽的双人床,和侧面宽度为60厘米的衣柜,还包括床两侧的活动空间(两侧60——70厘米),以及柜门打开时所占用的空间(60厘米)。如果衣柜采用拉门,那么墙面只需要360厘米宽就够了
 
在客厅
 
1.长沙发与摆在它面前的茶几之间的正确距离是多少?30厘米
 
在一个(240*90*75高厘米)的长沙发面前摆放一个(130*70*45高厘米)的长方形茶几是非常舒适的。两者之间的理想距离应该是能允许你一个人通过的同时又便于使用,也就是说不用站起来就可以方便地拿到桌上的杯子或者杂志。
 
2.一个能摆放电视机的大型组合柜的最小尺寸应该是多少?200*50*180高厘米
 
这种类型的家具一般都是由大小不同的方格组成,高处部分比较适合用来摆放书籍,柜体厚度至少保持30厘米;而低处用于摆放电视的柜体厚度至少保持50厘米。同时组合柜整体的高度和横宽还要考虑与墙壁的面积相协调。
 
3.如果摆放可容纳三、四个人的沙发,那么应该选择多大的茶几来搭配呢?140*70*45高厘米
 
在沙发的体积很大或是两个长沙发摆在一起的情况下,矮茶几就是很好的选择,高度最好和沙发坐垫的位置持平。
 
4.在扶手沙发和电视机之间应该预留多大的距离?3米
 
这里所指的是在一个25英寸的电视与扶手沙发或长沙发之间最短的距离。此外,摆放电视机的柜面高度应该在40厘米到120厘米之间,这样才能使观众保持正确的坐姿。
 
5.摆在沙发边上茶几的理想尺寸是多少?方形:70*70*60高厘米。椭圆形:70*60高厘米。
 
放在沙发边上的咖啡桌应该有一个不是特别大的桌面,但要选那种较高的类型,这样即使坐着的时候也能方便舒适地取到桌上的东西。
 
6.两个面对面放着的沙发和摆放在中间的茶几一共需要占据多大的空间?
 
两个双人沙发(规格160*90*80高厘米)和茶几(规格100*60*45高厘米)之间应相距30厘米。
 
7.长沙发或是扶手沙发的的*背应该有多高?85至90厘米。
 
这样的高度可以将头完全放在*背上,让您的颈部得到充分的放松。如果沙发的*背和扶手过低,建议您增加一个*垫来获得舒适。如果空间不是特别宽敞,沙发应该尽量*墙摆放。
 
8.如果客厅位于房间的中央,后面想要留出一个走道空间,这个走道应该有多宽?100至120厘米。
 
走道的空间应该能让两个成年人迎面走过而不至于相撞,通常给每个人留出60厘米的宽度。
 
9.两个对角摆放的长沙发,它们之间的最小距离应该是多少?10厘米。
 
如果不需要留出走道的话,这种情况就能允许您再放一个茶几了。
 
点击进入>>更多精品文章图片
 

本文地址:http://www.45fan.com/a/question/27510.html
Tags: 尺寸 参考 家居装修
编辑:路饭网
关于我们 | 联系我们 | 友情链接 | 网站地图 | Sitemap | App | 返回顶部